Zadar:
№ объекта: 393


























Цена:
375.000 €
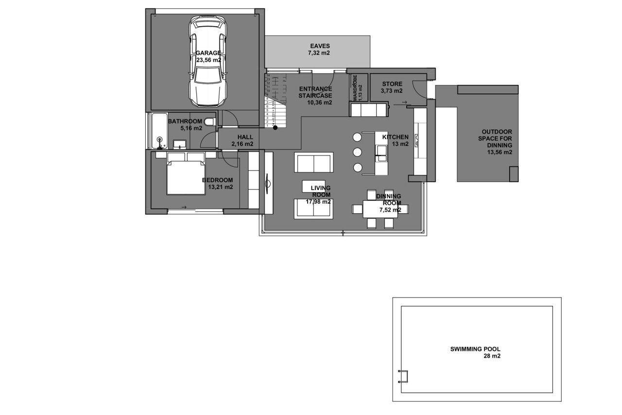
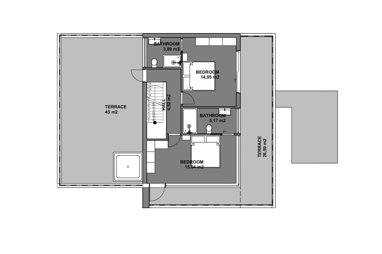
Жилая площадь:
150 кв.м
Земельный участок ок.:
300 кв.м
Количество комнат:
6
Тип дома: Одноквартирный дом
Подлежит начислению комиссионных: Да
Кухня: Встроенная кухня, Открыто
Ванная: Душ, Окно
Количество спальных комнат: 3
Количество ванных комнат: 2
Терраса: 1
Лоджия: 1
Приспособен для инвалидной коляски: Да
Приспособлен к нуждам пожилых людей: Да
Гостевой туалет: Да
Сад: Да
Не курящий: Да
Кондиционер: Да
Сигнализация: Да
Пригоден в качестве дома для проведения отпуска: Да
Количество мест автостоянки: 2 x Парковка снаружи
Обстановка: Частично обставлен
Вид из окна: Вид на море
Последняя модернизация/ ремонт: 2023
Качество отделки: Повышенное
Год постройки: 2018
Upon signing a purchase contract, a placement / termination fee of 5.8% including 19% VAT on the purchase price by the buyer will be charged.
The information provided by us is based on information provided by the seller or the seller. For the correctness and completeness of the information, no responsibility or liability can be accepted. An intermediate sale and mistakes are reserved.
We refer to our terms and conditions. Through further use our services do you explain your knowledge and consent.
Вам также может понравиться
Kroatien! Neubau Luxus Villa mit Pool und Dachterrasse
SMILE International Real Estates
Господин Matthias Comes
23452 Zadar



























